Recupero dell’ex cinema Leone

Castelleone, Cremona, Italia

Il percorso progettuale si è posto come obiettivi primari il rispetto dei caratteri strutturali del contesto e l’assonanza con le peculiarità morfologiche del sito. L’esistente fisico nella sua totalità ha rappresentato la condizione oggettiva della progettazione.

Il progetto propone la ristrutturazione del fronte su via Ospedale, collocandovi un secondario ingresso di servizio. Il nuovo fronte riqualifica l’edificio conferendogli una nuova e forte immagine architettonica. Il disegno del rivestimento in mattoni conferisce all’edificio maggiore rigore e dignità architettonica sulla scena urbana, con la sua esaltazione notturna tramite una serie di led luminosi distribuiti regolarmente sulla facciata.

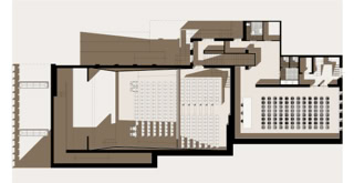
Gli accessi all’edificio sono organizzati mediante un’entrata principale da via Garibaldi e un ingresso di servizio da via Ospedale. La sala conferenze posta al piano primo è indipendente e distinta dagli altri spazi ed è dotata di un proprio accesso dal portico su via Garibaldi. 

Dall’ingresso principale si accede al foyer che introduce alla sala polifunzionale. L’ingresso e il foyer sono caratterizzati dall’impiego di materiali caldi come il legno di ciliegio, usato per il rivestimento delle pareti e dei soffitti, ed il marmo di Trani, usato per il pavimento. La dimensione dei pannelli, il disegno del rivestimento e del pavimento sono importanti e quindi rigorosi. Una grande parete vetrata garantisce una buona illuminazione naturale dell’ingresso.

Il progetto tende a definire un ambiente caldo, luminoso, razionale e flessibile. Uno spazio confortevole, caratterizzato da un accurato studio dei colori, dei materiali e dei dettagli costruttivi.

La sala polifunzionale ha una capienza di 208 posti. Le sedute sono disposte su un piano inclinato in modo da garantire una buona visibilità del boccascena.

Il palcoscenico è piano e studiato per rappresentazioni teatrali che prevedono scenografie semplici, preferibilmente volumetriche, senza movimentazione verticale delle scene.

L’esecuzione di concerti musicali è resa possibile dalla geometria dell’ambiente. La conformazione delle pareti e del soffitto e le caratteristiche di assorbimento acustico di ogni superficie garantiscono un’ottimale resa del suono.

L’ammezzato, raggiungibile dal foyer attraverso una scala costituita da gradini in massello di marmo, accoglie altri 112 posti. I materiali caratterizzanti questo spazio sono i medesimi impiegati per la platea.

La sala conferenze è contraddistinta da un grande spazio e dalla libera disposizione degli arredi. Un ampio tavolo per i relatori e 96 sedute sono organizzati in modo semplice e razionale.

Il sistema di illuminazione è distinto tra sala polivalente e sala conferenze.

In generale la funzione essenziale svolta dall’impianto di illuminazione è quella di definire l’identità dei diversi ambienti e risaltare gli elementi architettonici. Contemporaneamente vengono assicurati gli idonei livelli di illuminamento e un’alta qualità delle fonti luminose in tutte le aree. L’impianto di illuminazione principale prevede cinque diverse applicazioni, dettate da precise logiche tecniche ed estetiche.

Nell’elaborazione della proposta progettuale si è mirato al raggiungimento di un equilibrio tra i principi informatori del progetto e la pratica del costruire, tra teoria e prassi, tra intuizione formale e soluzione esecutiva e scelta tecnologica, nel rispetto dei vincoli esistenti e dei limiti di spesa prestabiliti. 


Progetto

Massimiliano Gamba


Committente

Comune di Castelleone


Dati dimensionali

Superficie utile piano terra: 572 mq

Superficie utile piano primo: 488 mq


Cronologia

Proposta di concorso: 2007


<

Questo sito web fa uso di cookie.

Si prega di consultare la nostra Cookie Policy per i dettagli.

Rifiuta Accetta