Knowledge and innovation center

Tripoli, Libano

Progetto urbanistico ed architettonico per il nuovo “Knowledge and Innovation Center”, un campus tecnologico nella città di Tripoli, in Libano. Un contesto di notevole valore, all’interno della Fiera Internazionale Rachid Karami, progettata da Oscar Niemeyer negli anni ’60.

La Tripoli Special Economic Zone (TSEZ), proprietaria del Knowledge and Innovation Center, è la prima autorità del suo genere in Libano incaricata di sviluppare zone economiche multiuso nel Paese, complete di tutte le infrastrutture necessarie. Una apposita legge a tal fine è stata approvata dal Parlamento libanese nel 2008. Con la creazione della TSEZ si vogliono superare le barriere che storicamente hanno ostacolato gli investimenti esteri ed impedito a molte imprese di espandere le proprie attività in Libano. La TSEZ gode ora di una serie di vantaggi e offre incentivi legali, amministrativi e fiscali.

Le autorità della TSEZ intendono pianificare il “Knowledge and Innovation Center” presso la Fiera Internazionale Rachid Karami di Tripoli, quale piattaforma dinamica di collaborazione per incentivare e promuovere idee innovative, interazione dinamica, servizi e infrastrutture di fascia alta, moderni stili di vita, finanziamenti e governance evoluti.

Il “Knowledge and Innovation Center” (KIC) è pertanto un progetto di sviluppo che ospiterà e favorirà la crescita di attività imprenditoriali, start-up e PMI nella città di Tripoli. Mira a creare opportunità di lavoro per i giovani, fornendo un ambiente dinamico per la crescita e la creatività. Il KIC aspira infine a generare una vasta gamma di affiliazioni con università locali, incubatori, acceleratori e organizzazioni private e pubbliche.

Il KIC è destinato ad attirare una varietà di imprese tra cui ICT tenants, strutture di ricerca, accademie di formazione, industrie creative e servizi a valore aggiunto. Queste imprese beneficeranno della connessione internet veloce fornita dal cavo principale I-ME-WE che collega l’Europa al Medio Oriente e all’India occidentale.

Il progetto per il KIC sarà sviluppato in collaborazione con il settore privato ed ospiterà società di servizi locali e regionali, che beneficeranno degli incentivi della TSEZ, di procedure amministrative semplificate e di un contesto a sostegno delle aziende.


“Lo spazio e l’architettura, che cosa sono in fondo? Portami un terreno, portami un programma e, in funzione del programma e del terreno, emergerà l’architettura. L’architettura che noi creiamo si fa con il cemento armato, mentre a terra non esistono molte colonne portanti. In questo modo l’architettura diventa più sciolta e più audace […]. Bisogna sempre far sì che un palazzo non assomigli a un altro. È lo stesso concetto dell’opera d’arte. Dove si guarda e ci si emoziona è perché si vede qualcosa di differente. L’architettura è invenzione. Il resto è ripetizione e non interessa” (Oscar Niemeyer, 2009).


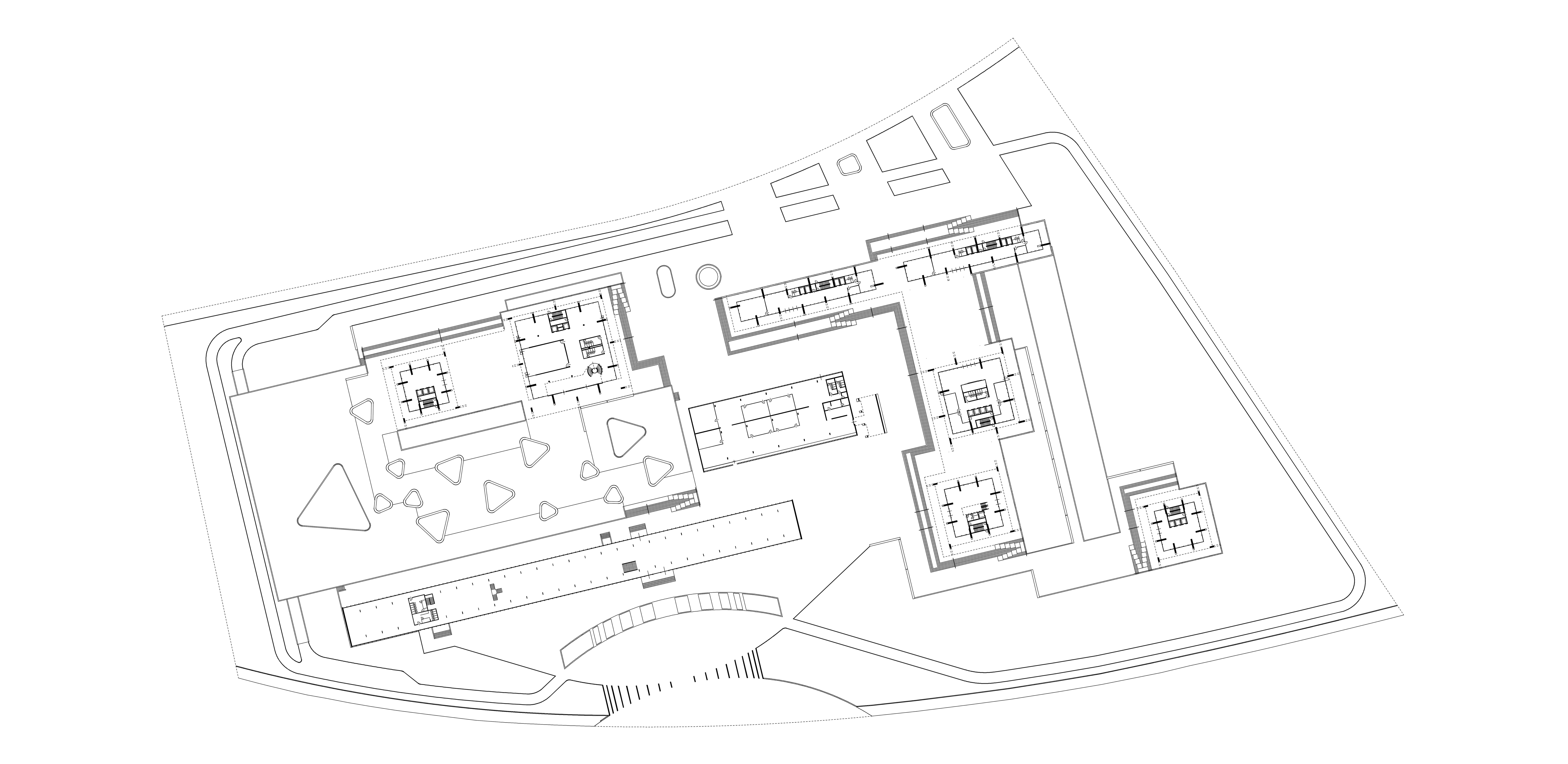
La Fiera internazionale di Tripoli viene commissionata a Oscar Niemeyer nel 1963 da parte del governo libanese, ma questo monumento della modernità non ha mai trovato compimento, in quanto il cantiere è stato abbandonato nel 1975 a causa del perdurare della guerra civile libanese. A scala urbana il progetto è caratterizzato dalla forte figura dell’ellisse del complesso fieristico, quale recinto definito dal progetto infrastrutturale nella sua complessità e articolazione di velocità di percorso differenti. Un progetto di urbanizzazione volto a dotare Tripoli di un quartiere moderno tra l’area costiera e la fiera, pensato con lo sguardo rivolto alla futura espansione della città e dotato di zone residenziali, aree commerciali, sportive, ricreative e turistiche, supportate da scuole, negozi, club, alberghi, cinema, teatri, spazi espositivi, architetture per il culto e di quant’altro necessario alla vita.

Oscar Niemeyer definisce così una composizione moderna di elementi architettonici e figurativi già tipici e sperimentati in altre occasioni, articolata in precisi termini spaziali ed arricchita dalla costante presenza dell’acqua, con una funzione evocativa e simbolica, oggi amplificata dall’incompiutezza dell’opera.

Il tema progettuale è estremamente interessante in quanto il contesto di intervento è costituito da un sito di alto valore architettonico e di sviluppo. Comprende la conservazione degli edifici appartenenti alla storia dell’architettura moderna e la progettazione di strutture contemporanee all’interno di un moderno campus, attualmente nella Tentative List del patrimonio mondiale dell’UNESCO.

Nella progettazione del KIC, la massima attenzione è posta sulla relazione tra i nuovi edifici e gli edifici esistenti progettati da Oscar Niemeyer, nonché tra il nuovo piano urbano e il piano generale esistente di Niemeyer per il campus RKIF.

La proposta progettuale presta molta attenzione alla sua funzionalità, alla chiarezza dell’organizzazione del programma funzionale, alla qualità dell’architettura, alla qualità degli spazi interni ed esterni, alla qualità dell’espressione estetica e architettonica, all’adeguatezza dei materiali proposti e della tecnica costruttiva, agli aspetti della sostenibilità ambientale e sociale e alla coerenza complessiva del progetto. Al contempo essa è una chiara visione per riabilitare l’area, attraverso un piano generale che mira a ricostruire e rivitalizzare questa parte della città di Tripoli.

Il nuovo assetto del KIC si compone di nuovi edifici e di edifici esistenti riqualificati, sulla base del preciso programma funzionale, articolato in due fasi di sviluppo, per un totale di circa 60.000 mq di superficie lorda di pavimento, destinati ad uffici, commercio e residenza.

L’entrata principale è caratterizzata da una nuova struttura architettonica inclusiva, che accoglie il visitatore e delimita la geometria degli spazi esterni ed interni al campus in corrispondenza dell’ingresso.

L’articolazione dei nuovi volumi definisce i percorsi esterni creando una nuova e qualificante successione di spazi aperti.

Gli autoveicoli non sono ammessi all’interno del campus. Un’unica strada ad anello e a senso unico di marcia connette l’ingresso con il parcheggio interrato. Il parcheggio si sviluppa su due piani, di cui il primo, seminterrato, garantisce lungo il suo perimetro una naturale ventilazione. La copertura del parcheggio a giardino è in continuità con il sistema dei percorsi e degli spazi pubblici.

Dal punto di vista morfologico e compositivo la nuova architettura intende instaurare un rapporto dialettico con gli edifici esistenti. Pur rivendicando una propria poetica progettuale, in coerenza con un continuo percorso di ricerca e sperimentazione, l’architettura proposta attinge da un repertorio formale e figurativo, che discerne autonomamente dalla griglia dei caratteri distintivi dell’architettura di Oscar Niemeyer il materiale compositivo per la progettazione dei nuovi edifici.

Gli edifici sono realizzati in calcestruzzo a vista e la composizione architettonica si identifica nella loro geometria strutturale. L’ampio impiego di superfici vetrate definisce ambienti aperti, luminosi, trasparenti e flessibili. L’architettura si presenta così con un rapporto tra vuoti e pieni variabile nelle diverse ore della giornata. Dove il carattere identificativo dello spazio è fondato sul rapporto mutevole tra trasparenza e materia. La luce, naturale e artificiale, la trasparenza e la permeabilità visiva dello spazio assumono un ruolo primario, valorizzati dall’impiego del vetro.

Tutti gli edifici sono connessi da spazi e percorsi rialzati, con grandi terrazze e grandi sbalzi volti ad alleggerirne la connessione a terra. Ai piani superiori le connessioni tra i vari edifici generano al piano terra grandi spazi aperti coperti, portici ombreggiati per una confortevole socialità. Terrazze e giardini trasformano le coperture degli edifici in ulteriori spazi da vivere.

L’architettura dei nuovi edifici si distingue sia per l’audace composizione degli elementi, sia per il piacere intrinseco della sperimentazione. I vari piani orizzontali sono sostenuti e connessi da setti verticali rastremati, che generano grandi sbalzi ed ampi spazi liberi. Piani liberi e flessibili per essere organizzati con grande libertà nella distribuzione interna degli ambienti, insieme a terrazze aperte e giardini laddove desiderati, con alternanza di luci ed ombre, privacy e panorami.

La composizione degli elementi strutturali varia al variare dell’altezza dell’edificio, cosicché ogni piano è diverso dagli altri e la modulazione dei vuoti e dei pieni delle facciate che ne consegue dona all’edificio un’identità distintiva straordinaria.

Tale assetto, apparentemente casuale, risponde ad una precisa matrice compositiva che consente al contempo la differenziazione del volume ed una ragionevole razionalizzazione degli elementi costruttivi, composti in piani modulari ripetuti in combinazioni diverse.

Lo sforzo progettuale è teso come sempre al raggiungimento di un equilibrio tra i principi informatori del progetto e la pratica del costruire, tra teoria e prassi, tra intuizione formale e soluzione esecutiva e scelta tecnologica, nel rispetto dei vincoli esistenti e dei limiti di spesa predeterminati.


Progetto

Massimiliano Gamba


Dati dimensionali

Superficie territoriale: 75.000 mq

Superficie lorda: 60.000 mq


Cronologia

Proposta di concorso: 2019


<

Questo sito web fa uso di cookie.

Si prega di consultare la nostra Cookie Policy per i dettagli.

Rifiuta Accetta