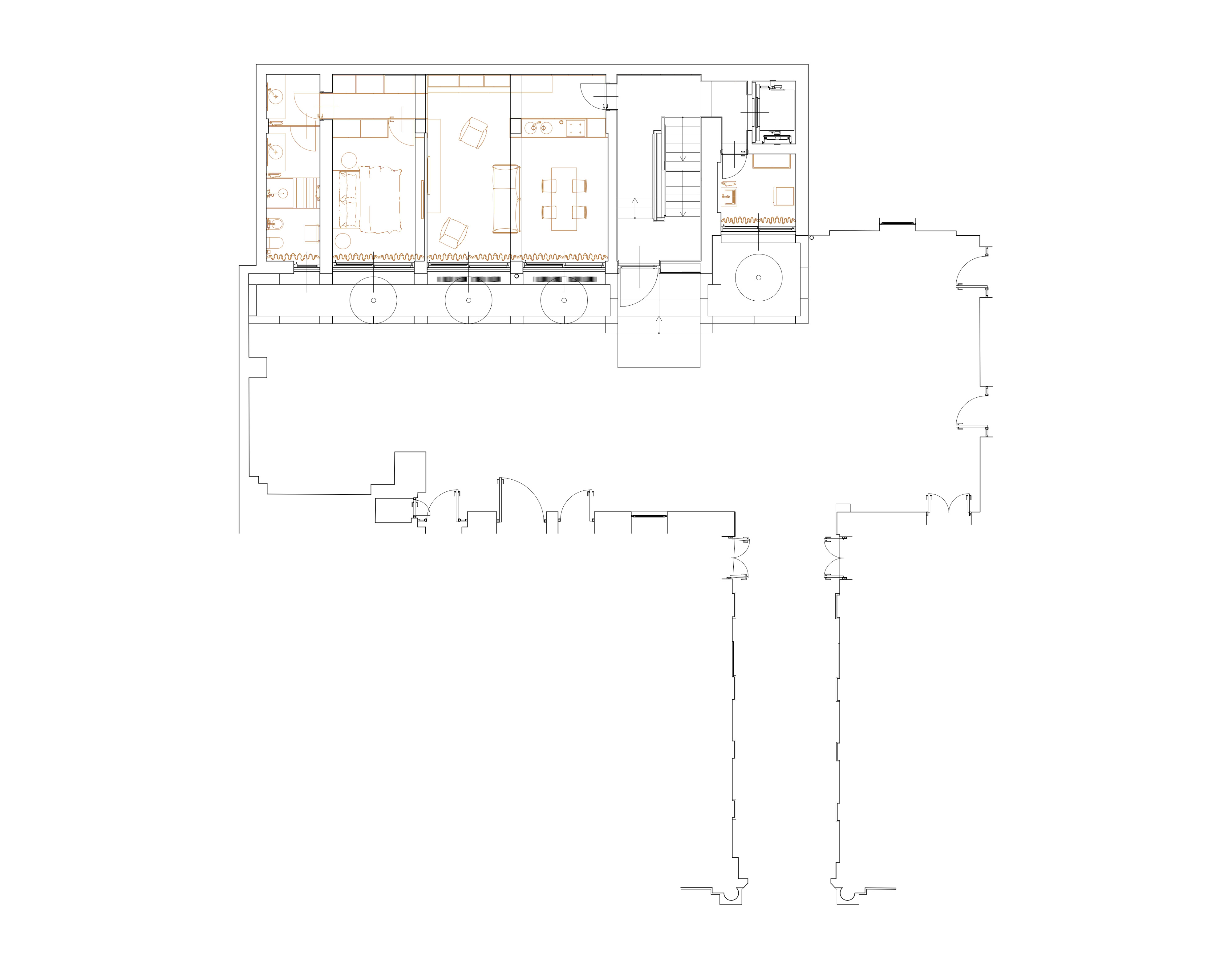
Corte 50

Timisoara, Romania

Intervento di ristrutturazione e interior design per un edificio residenziale in una corte nel cuore della città storica di Timisoara.


Progetto e Direzione lavori

Massimiliano Gamba


Cronologia

Progetto: 2022 | In corso


<

Questo sito web fa uso di cookie.

Si prega di consultare la nostra Cookie Policy per i dettagli.

Rifiuta Accetta