Casa privata

Dubai, Emirati Arabi Uniti

Il progetto propone un modello abitativo replicabile, destinato ai cittadini emiratensi che risiedono a Dubai, città aperta al futuro, dove sono protagonisti innovazione, tecnologia e design internazionale e al contempo città con un patrimonio storico, architettonico e culturale da tramandare.

Il percorso di ricerca ha tenuto in considerazione tale duplice spirito della città di Dubai, la tradizione architettonica e costruttiva locali, nonché le condizioni climatiche del contesto.

Il percorso progettuale è stato orientato verso inedite qualità espressive della materia, con una tensione verso la sintesi del gesto progettuale tra tradizione e innovazione, memoria e contemporaneità.


Il progetto prevede l’applicazione di soluzioni costruttive sostenibili a basso consumo energetico ed elevato comfort abitativo nell’ambiente di Dubai, caratterizzato da un clima sub-tropicale con una temperatura media estiva di 35°C e punte giornaliere fino a 55°C, nonché umidità relativa fino al 90%.

L’edificio proposto dovrà essere energeticamente autosufficiente attraverso l’utilizzo di fonti energetiche rinnovabili.


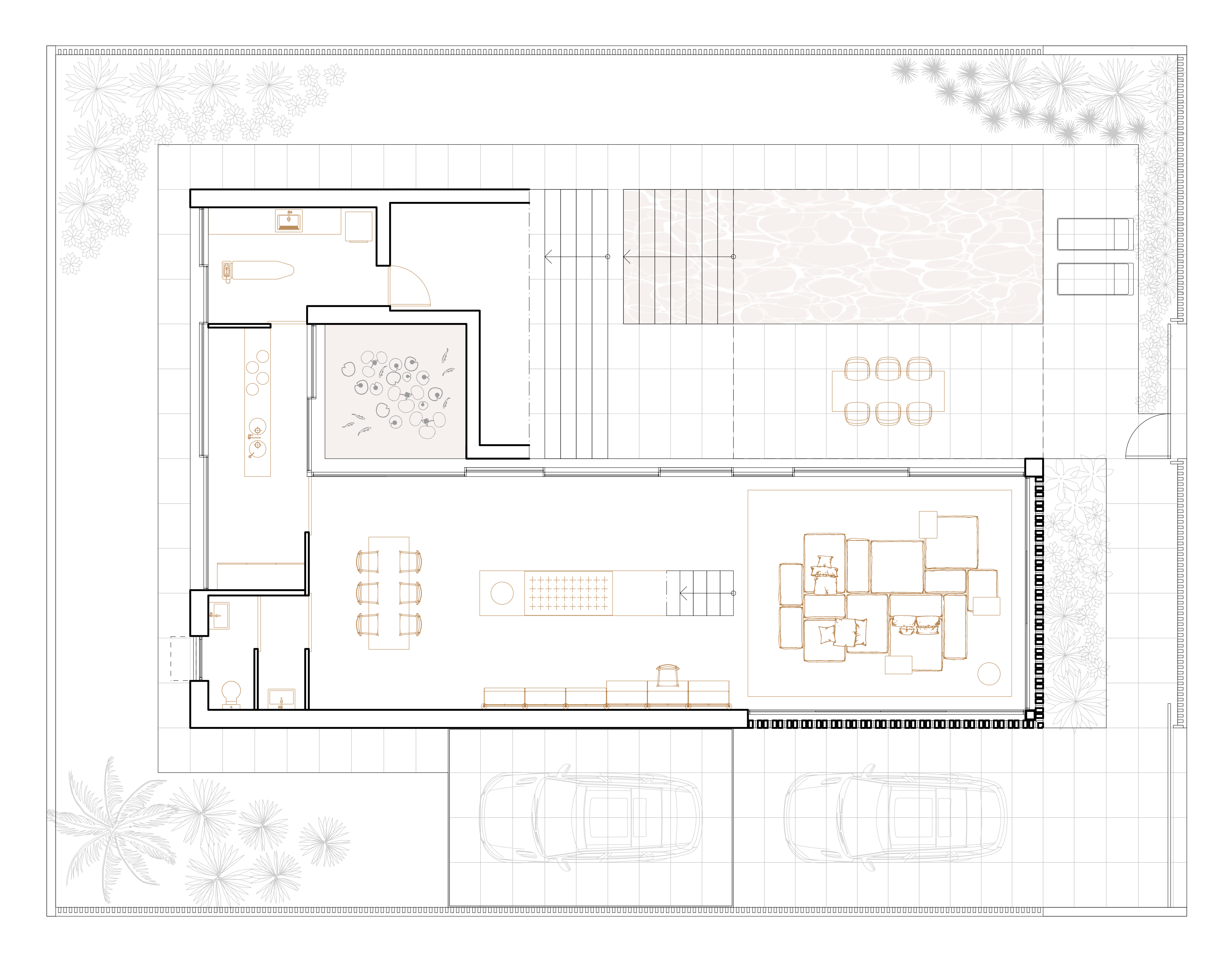
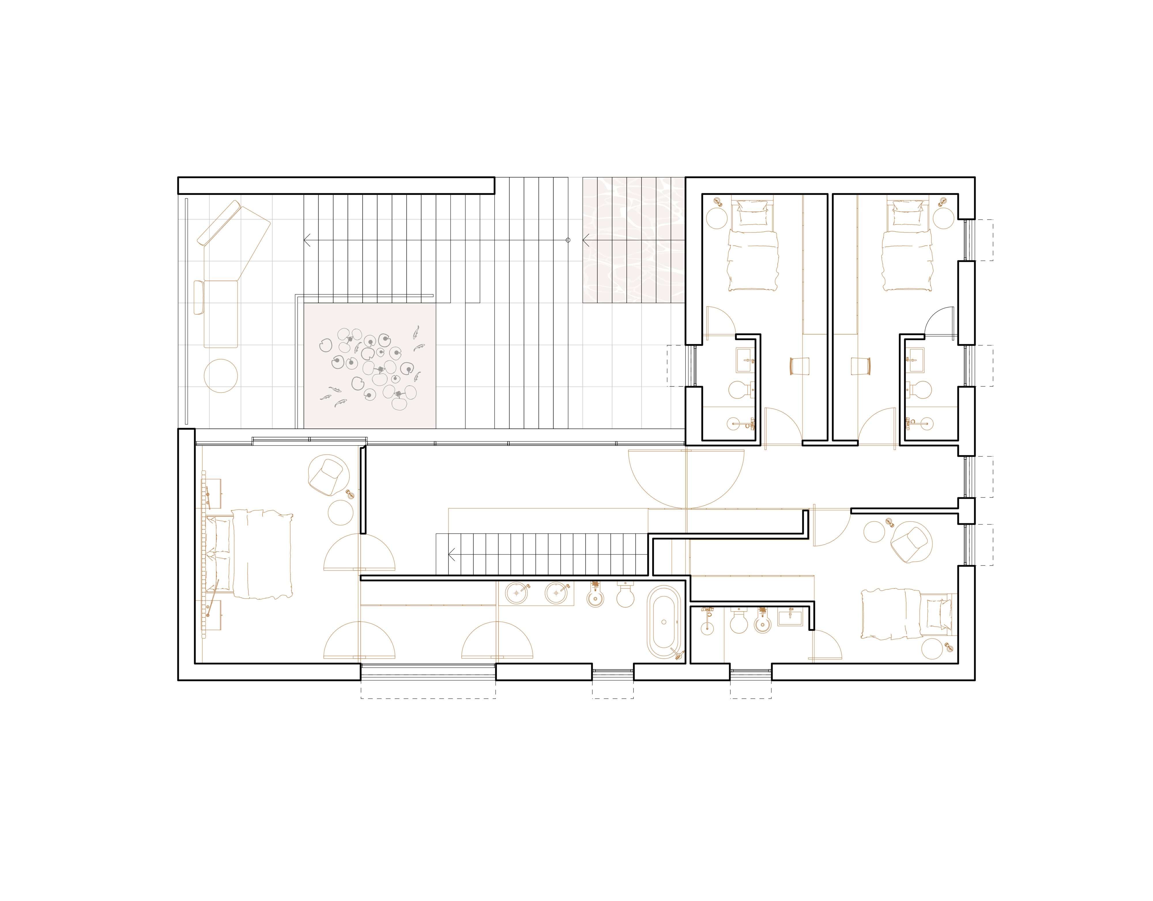
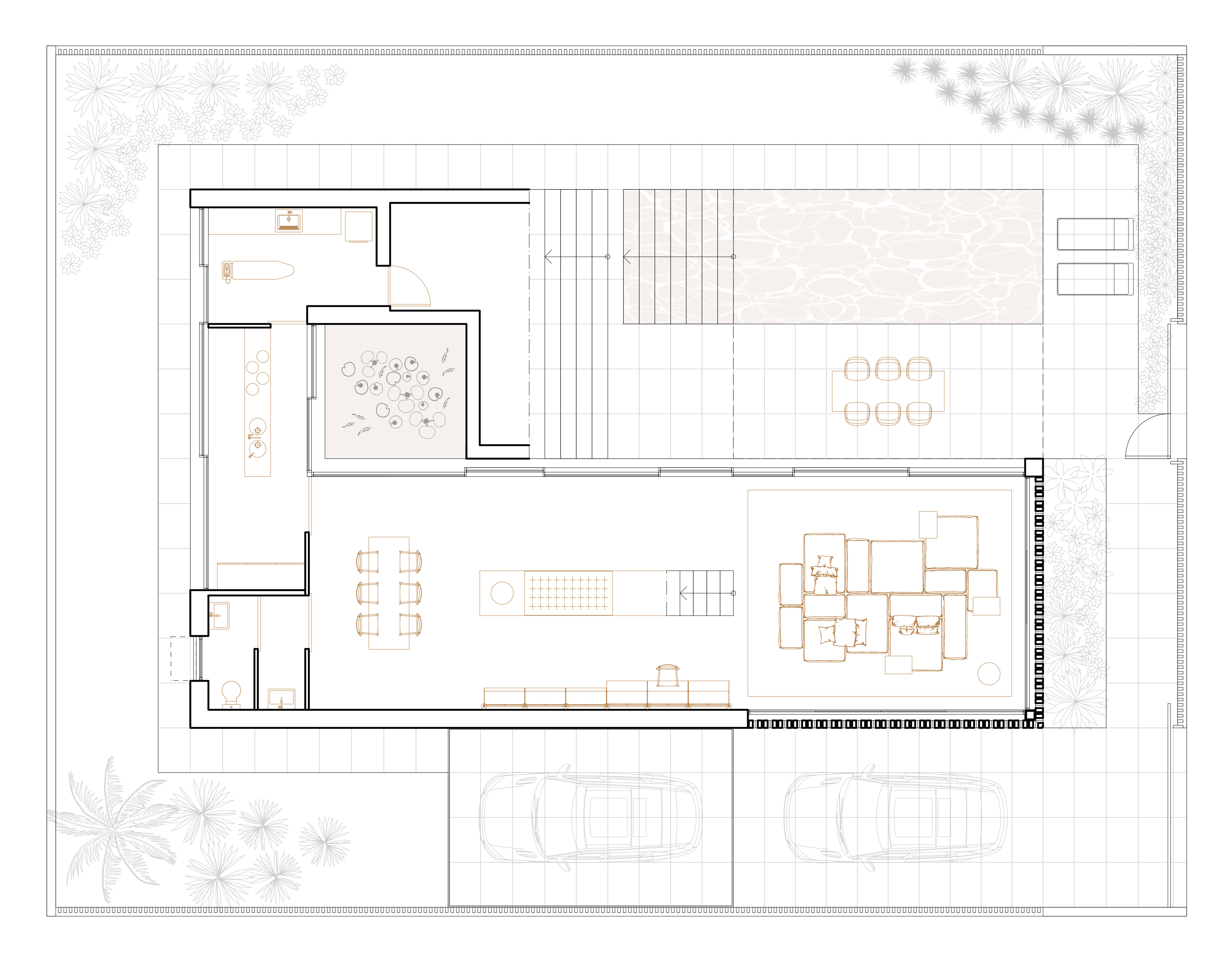
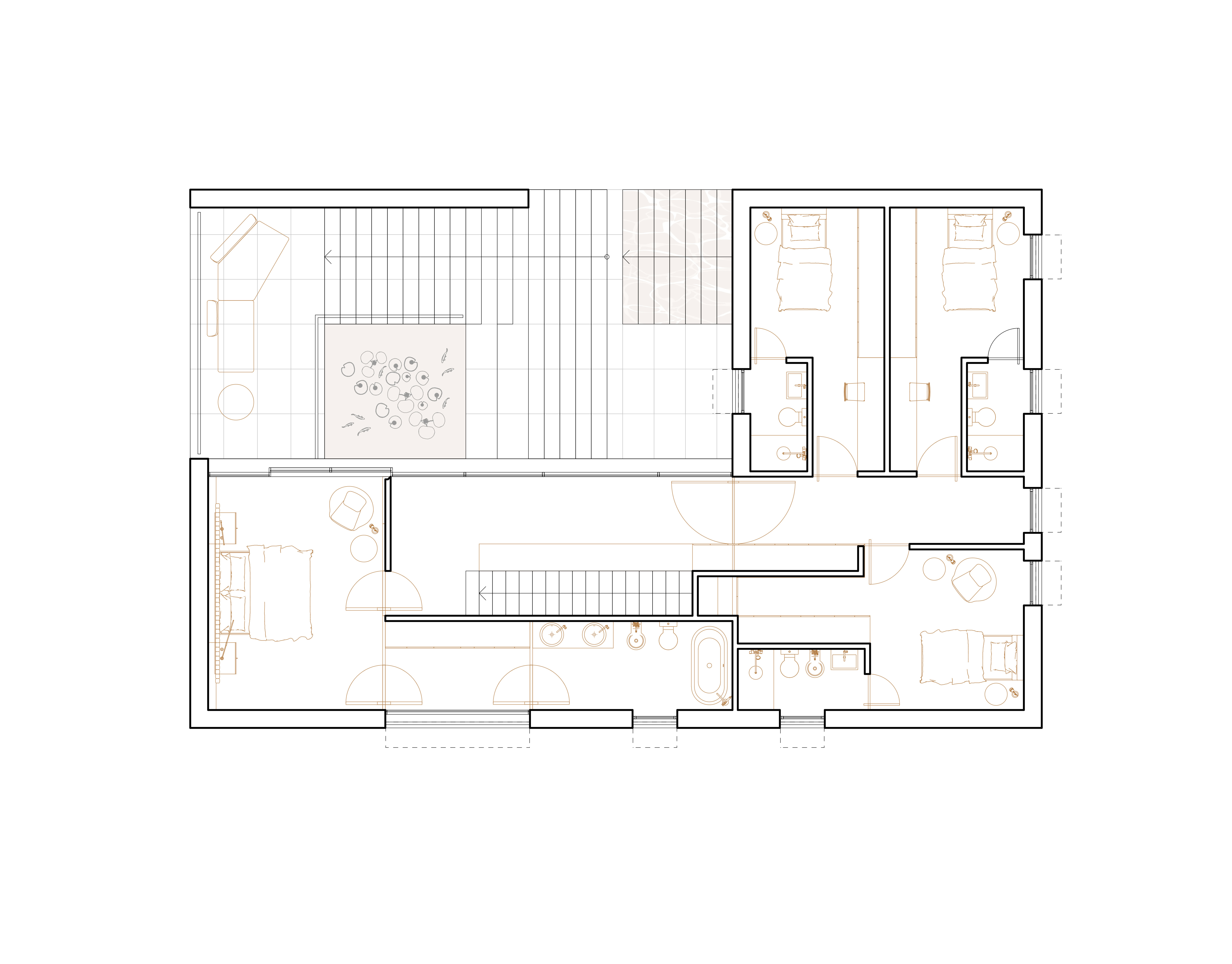
Il progetto soddisfa le esigenze funzionali predeterminate e reinterpreta in chiave contemporanea la filosofia abitativa del Medio Oriente. Allo stesso tempo tiene conto della necessità di ridurre l’apporto solare, senza rinunciare all’illuminazione naturale interna.

Le soluzioni impiantistiche previste sono:

- pannelli solari;

- collettori termici;

- pompa di calore;

- raffrescamento a pavimento;

- ventilazione meccanica con deumidificazione;

- riciclo delle acque piovane e grigie;

- sistema di controllo domotico.

In questo modo e attraverso una progettazione esecutiva integrata è possibile raggiungere uno standard energetico in cui il consumo totale annuo di energia primaria è pari alla produzione in loco. Il cosiddetto ZEB - Zero Energy Building.


È previsto un sistema di riciclo dell’acqua per lo scarico dei wc e l’irrigazione del giardino. Il sistema è costituito da un impianto dedicato comprendente serbatoi dell’acqua, pompe, trattamento dell’acqua e relativo sistema di distribuzione.


Essendo un tipo di energia rinnovabile, l’energia solare è pulita e sicura. Dubai riceve circa 3.000 ore di sole all’anno. La DEWA (Dubai Electricity and Water Authority) incoraggia l’uso dell’energia solare per ridurre la dipendenza dalle fonti energetiche tradizionali (come gas, petrolio e carbone). Laddove un edificio incorpora la generazione in loco di elettricità da un sistema solare fotovoltaico, è possibile optare per un sistema solare connesso alla rete o di un sistema solare off-grid.


Il District cooling a Dubai centralizza la produzione e la distribuzione dell’energia frigorifera e distribuisce la capacità di raffreddamento sotto forma di acqua refrigerata da una fonte centrale all’edificio attraverso una rete di tubazioni sotterranee. Il teleraffreddamento è un sistema di climatizzazione ad alta efficienza energetica poiché consente di risparmiare fino al 35% di energia rispetto ai sistemi di climatizzazione tradizionali. In questo modo viene ridotta l’impronta di carbonio, aumentando l’efficienza energetica e riducendo le emissioni ambientali.


Il progetto applica i principi del biophilic design, che assecondano il bisogno innato che hanno le persone di rimanere in contatto con la vita e i suoi processi. Tali principi possono essere così riassunti: grande presenza di luce naturale, ambienti ariosi, utilizzo di materiali naturali e spazi dedicati alla vegetazione. L’edificio e i suoi spazi contribuiscono così ad alleggerire il sistema cognitivo, favoriscono quello sensoriale e fungono da regolatore degli stati psicologici estremi, evitando sia la depressione che gli effetti eccitanti. I principi del biophilic design rafforzano inoltre il livello neurale in termini emotivi e biologici e hanno effetti benefici sul sistema immunitario.


Progetto

Massimiliano Gamba


Cronologia

Proposta di concorso: 2023


<

Questo sito web fa uso di cookie.

Si prega di consultare la nostra Cookie Policy per i dettagli.

Rifiuta Accetta