Menu
Studio
Profilo
Massimiliano Gamba
Opere e progetti
Residenza
Commercio e uffici
Luoghi per la collettività
Design di prodotto
Info
Contatti
Cookie Policy
Copyright e crediti
EN
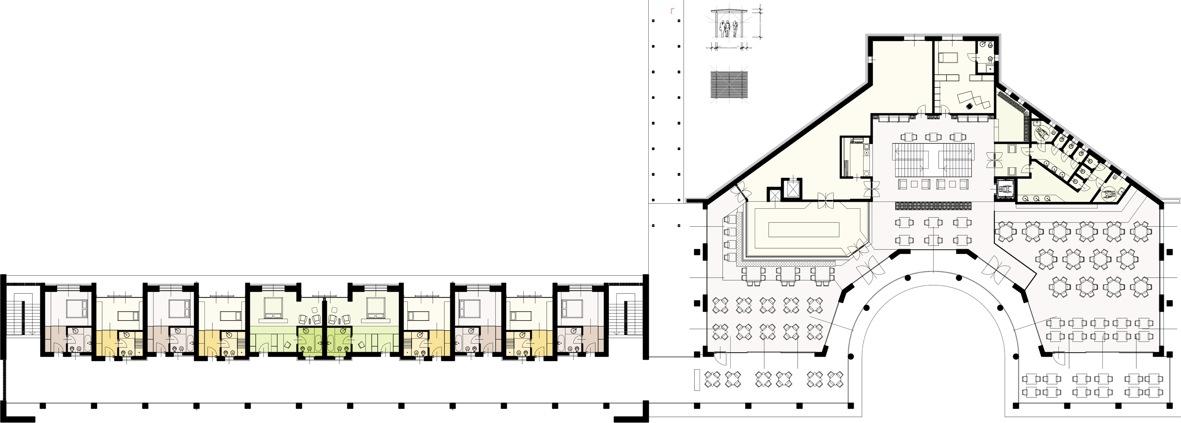
Albergo e ristoranti in Franciacorta
Brescia, Italia
Progetto
Cronologia
Progetto: 2008
<
Questo sito web fa uso di cookie.
Si prega di consultare la nostra Cookie Policy per i dettagli.