Uffici ADH & Associati
Bergamo, Italia
Questo progetto di ristrutturazione ha trasformato un vecchio edificio nel centro di Bergamo in un moderno ed ampio ufficio di 500 mq disposto su due livelli.
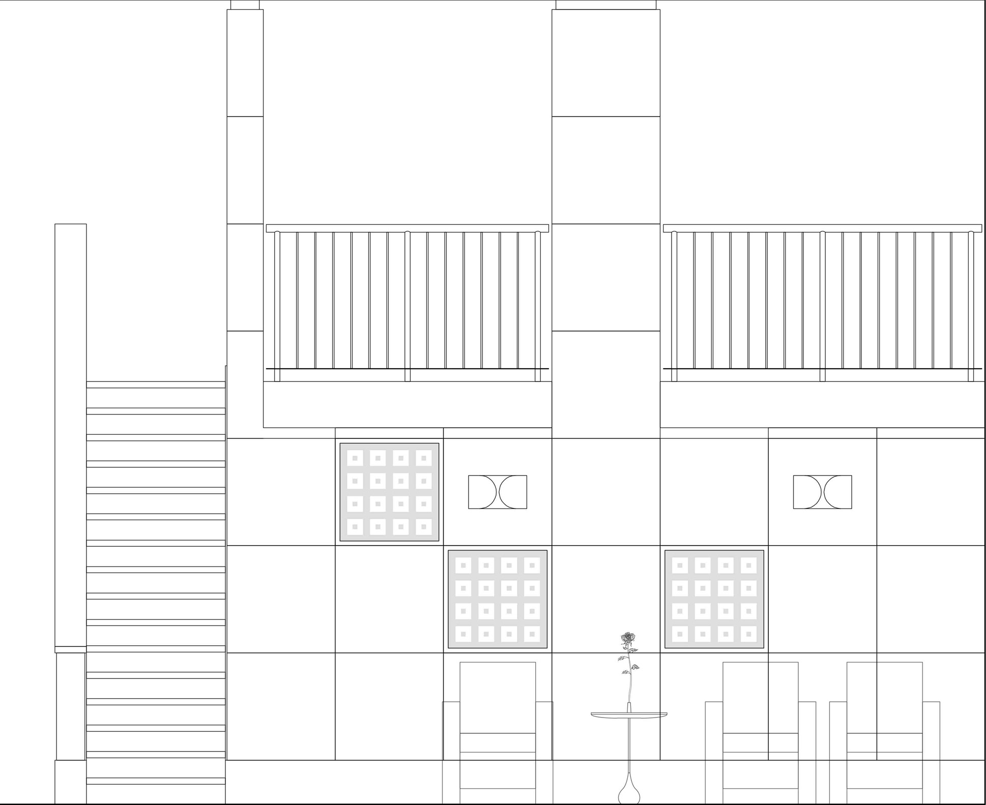
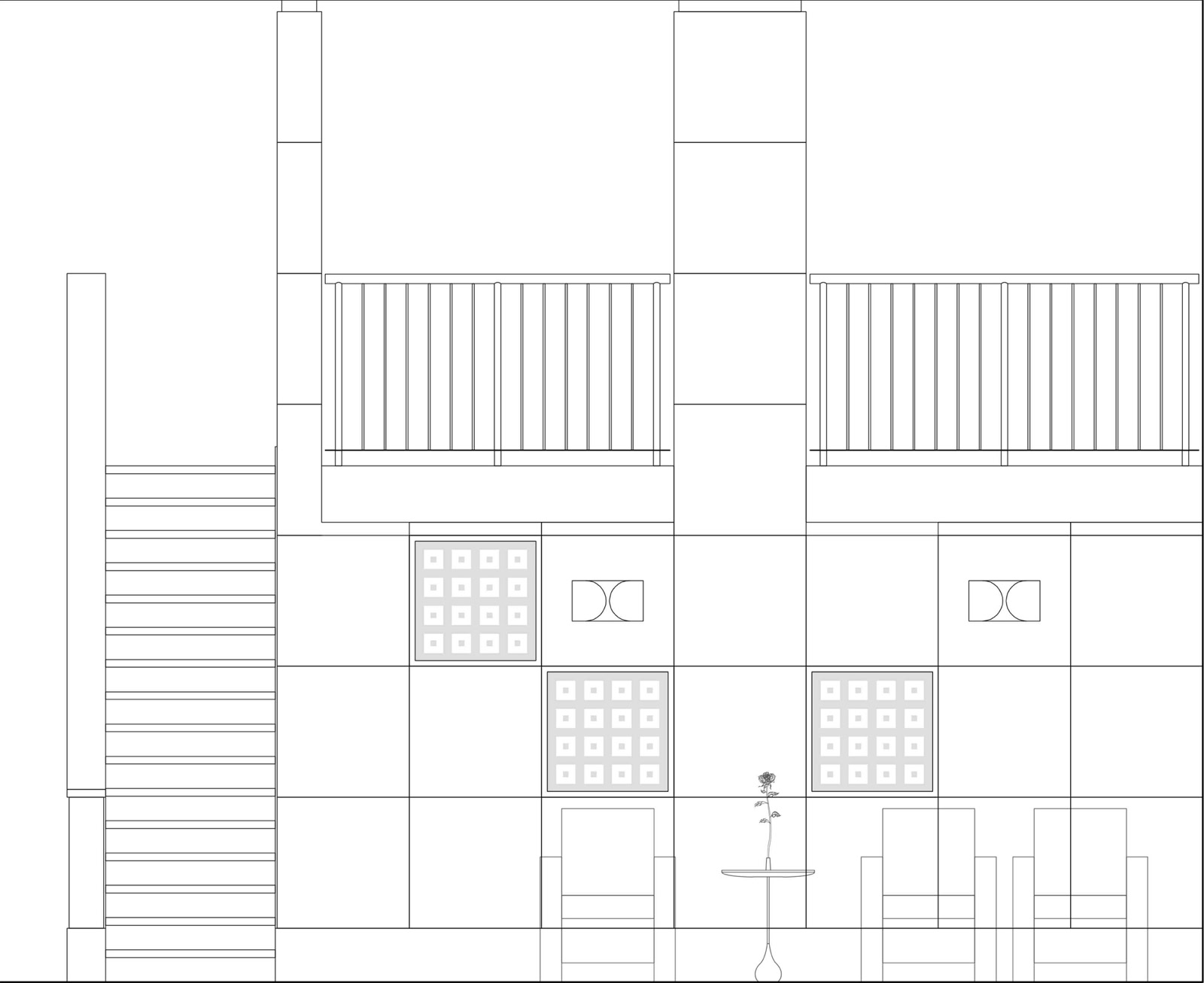
L’elevata altezza dei locali e la conformazione dell’edificio hanno permesso, nei limiti consentiti dai regolamenti, di realizzare dei soppalchi, sfruttando così la disponibilità di superficie per gli spazi operativi, e di valorizzare gli spazi di rappresentanza e direzionali attraverso l’altezza e la variazione di scala degli elementi architettonici.
I committenti non hanno posto condizioni riguardo all’architettura; hanno semplicemente esposto il programma generale, esprimendo il desiderio che si costruisse uno spazio confortevole per lavorare e che si esprimesse una severità estetica persuasiva della solidità e professionalità dello studio. Consapevoli inoltre che la qualità degli spazi di lavoro assumerà, al pari dell’incentivazione economica e della competitività, sempre più importanza nelle strategie di gestione del personale.
Benché il contenuto del progetto sia stato in gran parte tecnico, in quanto è stato soddisfatto un programma funzionale complesso ed in quanto la componente impiantistica ha avuto notevole importanza, gli aspetti architettonici di questa proposta progettuale hanno fin dall’inizio assunto il ruolo forte di filo conduttore in tutte le fasi di progettazione e di realizzazione.
L’uso di materiali nobili, come la pietra ed il legno, una generosa illuminazione naturale ed un impiego discreto della luce artificiale hanno contribuito a caratterizzare gli spazi interni.
L’ingresso, completamento rivestito in ciliegio fino all’altezza di 5,20 m, superato il mobile ottagonale in ferro della reception, attraverso un grande portone rosso conduce alla sala riunioni, anch’essa rivestita in ciliegio. Da questa una parete vetrata si apre verso un patio pavimentato in cotto che ospita al centro un grande tavolo in marmo di Zandobbio per le riunioni all’aperto.
Dall’ingresso i lunghi corridoi portano agli spazi operativi del piano terra, mentre le due scale laterali simmetriche conducono al piano superiore dove, attraverso ballatoi illuminati naturalmente dalle alte finestre, in un delicato equilibrio di luci ed ombre si giunge agli uffici dei titolari dello studio.
Si tratta di un ambiente ampio e luminoso, aperto e sobrio. La luce naturale filtra attraverso le numerose bifore delle pareti perimetrali e dall’esterno si può percepire vagamente ciò che accade all’interno. Di sera, l’immagine suggestiva dell’edificio, con la luce proveniente dall’interno, permette di distinguere chiaramente il movimento delle persone al lavoro.
Progetto e Direzione lavori
Massimiliano Gamba
Cronologia
Progetto: 1999
Realizzazione: 2000
Studio
Opere e progetti
Info
Questo sito web fa uso di cookie.
Si prega di consultare la nostra Cookie Policy per i dettagli.
Rifiuta
Accetta