Knowledge and innovation center

Tripoli, Lebanon

Urban and Architectural concept for the “Knowledge and Innovation Center”, a business service and technology park in the city of Tripoli, Lebanon. The location of this project is exceptional, as it is located within the campus of Rachid Karami International Fair, a campus designed by Oscar Niemeyer in the 1960s. 

The Tripoli Special Economic Zone (TSEZ), the owner of the Knowledge and Innovation Center, is the first authority of its kind in Lebanon entrusted with developing a multi-use economic zones, complete with all the required infrastructure and utilities. The TSEZ Law No. 18 was passed by the Lebanese Parliament in 2008. The creation of the TSEZ will attempt to overcome the barriers that have historically stymied foreign direct investment and that have prevented many local private sector businesses from expanding their operations in Lebanon. To this end, TSEZ enjoys a multitude of advantages and offers a series of legal, administrative and fiscal incentives. 

TSEZ Authority is now planning to establish the “Knowledge and Innovation Center” at the Rachid Karami International Fair in Tripoli. The “Knowledge and Innovation Center” aspires to become a dynamic platform for collaboration bringing together innovative ideas, diverse population, dynamic interaction, progressive services, high-end infrastructure, modern life-style amenities, wide-ranging funding sources and enhanced governance. 

The “Knowledge and Innovation Center” (KIC), a business and technology park, is a planned development project that will accommodate and foster the growth of entrepreneurial activities, start-ups and SMEs in the city of Tripoli. It also aims at creating job opportunities for the youth by providing a dynamic environment for growth and creativity. KIC aspires to generate a wide array of affiliations with local universities, incubators, accelerators as well as private and public organizations. 

Thus, KIC is envisaged to attract a variety of enterprises including ICT tenants, research facilities, training academies, creative industries and value-added services. These enterprises will benefit from the fast internet connection provided by the I-ME-WE main cable linking Europe to the Middle East and West India with a branch landing in Tripoli. 

The KIC project will be developed in partnership with the private sector and rented out as office space (flex-desk, serviced-offices or core & shell) to local and regional service companies, which will also benefit from the TSEZ’s incentives, streamlined procedures and supporting business environment. 


“What is space and architecture, after all? Bring me land, bring me a program and, depending on the program and land, architecture will emerge. The architecture we create is made with concrete, while on the ground there are not many columns. In this way, architecture becomes more dissolved and more audacious [...]. We must always ensure that a building does not look like another. It is the same concept as an artwork. Where you look and get excited is because you see something different. Architecture is invention. The rest is repetition and not interesting” (Oscar Niemeyer, 2009).


The Rachid Karami International Fair was commissioned to Oscar Niemeyer in 1963 by the Lebanese government, but this monument of modernity was never completed, because the site was abandoned in 1975 due to the Lebanese civil war. At the urban scale the project is characterized by the strong figure of the ellipse of the fair complex, a fence defined by the infrastructure project as a whole and in its articulation of different travel speeds. An urbanization project aimed at equipping Tripoli with a modern neighborhood between the coastal area and the fair, conceived with a view to the future expansion of the city and equipped with residential areas, commercial, sporting, recreational and tourist areas, supported by schools, shops, clubs, hotels, cinemas, theaters, exhibition spaces, architecture for worship and anything else necessary for life.

Thus Oscar Niemeyer defines a modern composition of architectural and figurative elements already typical and experimented on other occasions, articulated in precise spatial terms and enriched by the constant presence of water, with an evocative and symbolic function, today amplified by the incompleteness of the work.

This theme is extremely attractive because we have to work on a site of high architectural and developmental value. It involves the preservation of modern heritage buildings as well as the design of new structures within a modern heritage campus, currently listed on the UNESCO World Heritage Tentative List.

While designing the new buildings for the KIC parcel, utmost care is placed on the relationship between the new buildings and existing buildings designed by Oscar Niemeyer.

The most important challenge is to design a project within the campus designed by Oscar Niemeyer. For this reason, special care is placed on the relationship between the new KIC urban plan and the existing Niemeyer’s master plan for RKIF campus. 

The project pais great attention to its functionality, the clarity of the organization of the program elements, the quality of the architectural concept, the quality of the proposed spaces, the quality of the aesthetical and architectural expression, the adequacy of the proposed materiality and construction, aspects of environmental and social sustainability, and coherence of the project. At the same time it is a clear vision to rehabilitate the area, with a master plan that aims to rebuild and revitalize this part of Tripoli.

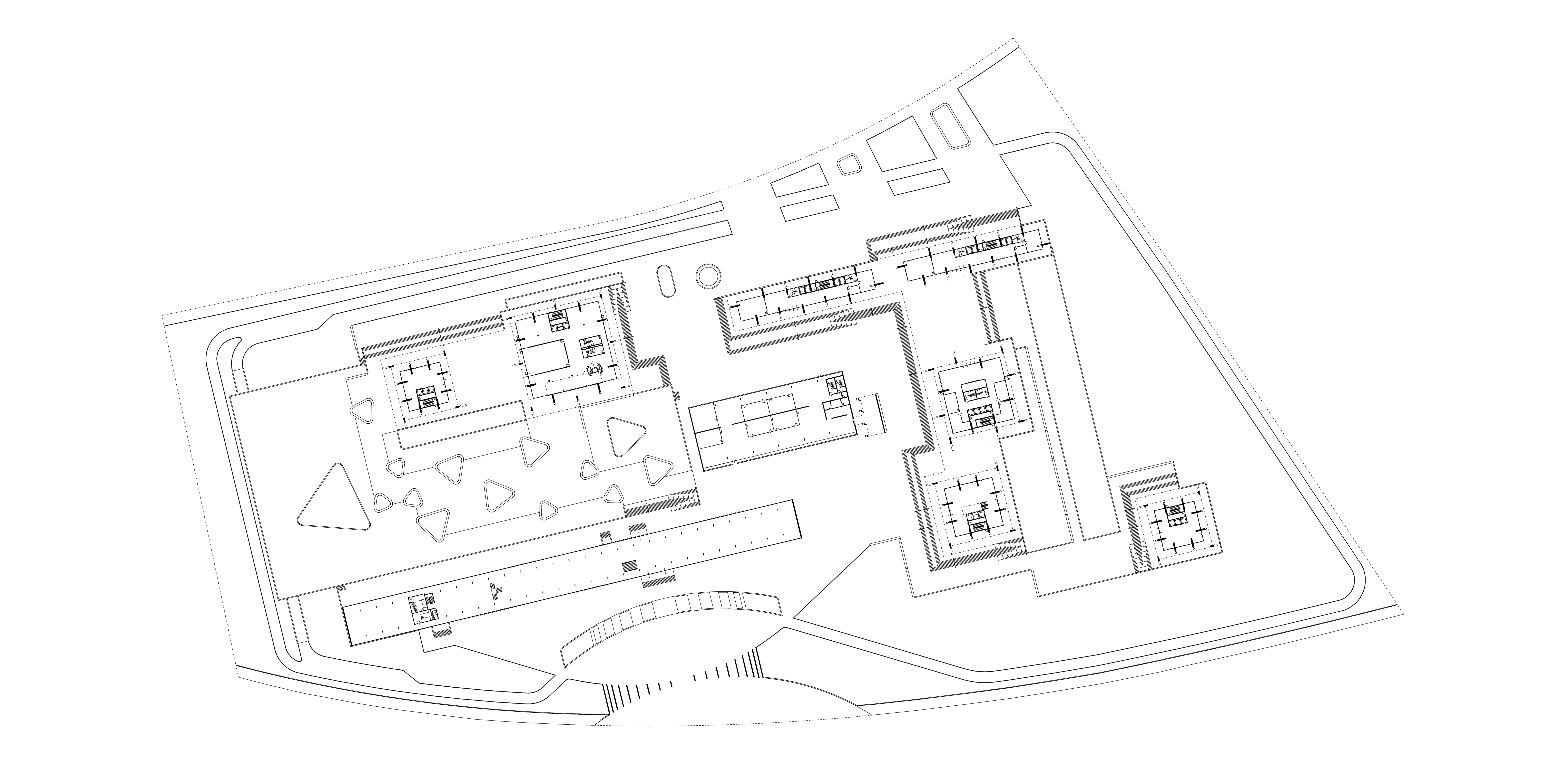
The new configuration of the KIC consists of new buildings and existing buildings redeveloped, based on the precise functional program, divided into two phases of development, for a built up area of approximately 60,000 sqm, for offices, commerce and housing.

The main entrance is characterized by a new inclusive architectural structure, which welcomes the visitor and delimits the geometry of the external and internal spaces of the campus around the entrance.

The articulation of the new volumes defines the external paths creating a new and qualified sequence of open spaces.

Vehicles are not allowed on campus. A single ring road with a one-way direction connects the entrance with the underground parking. The car park is on two floors and the first is a basement, guaranteeing natural ventilation along its perimeter. The roof garden is in continuity with the other paths and public spaces.

From the morphological and compositional point of view the new architecture intends to establish a dialectical relationship with existing buildings. While claiming our design poetry, consistent with a continuous process of research and experimentation, the architecture proposed draws from a formal and figurative repertoire, which discerns independently the compositional material for the design of new buildings from the grid of distinctive features of the architecture of Oscar Niemeyer.

The buildings are made of exposed concrete and the architectural composition is identified in their structural geometry. The extensive use of glass surfaces defines open, bright, transparent and flexible ambiences. The architecture thus presents itself with a variety of relationship between solids and voids throughout the day. Where the identifiable character of the space is in fact founded upon the changing relationship between transparency and mass. The light, both natural and artificial, the transparency and the visual permeability of space assume a primary role through the exploitation of the use of glass.

All the buildings are connected by raised spaces and paths, with large terraces and large overhangs designed to lighten the connection to the ground. On the upper floors the connections between the various buildings generate large covered open spaces on the ground floor, shaded porches for a comfortable socializing. Terraces and gardens transform the roofs of buildings into additional spaces to enjoy.

The architecture of the new buildings stands out both for the audacious composition of the elements and for the intrinsic pleasure of the experimentation. The various horizontal layers are supported and connected by tapered walls, which generate large overhangs and wide open spaces. Free and flexible floors to be organized with great freedom in the interior design, together with terraces and gardens where desired, with alternating lights and shadows, privacy and panoramas.

The composition of the structural elements varies with the height of the buildings, so that each floor is different from the others and the resulting modulation of solids and voids of the facades gives to the building an extraordinary distinctive identity.

This apparently casual arrangement responds to a precise compositional matrix that allows both differentiation of the buildings volume and a reasonable ratio of the construction elements, composed in modular floors repeated in different combinations.

Our commitment is also aimed at achieving a balance between the guiding principles of the project and the construction practice, between theory and praxis, between formal intuition and construction solution and the choice of technology, in compliance with existing constraints and the predetermined cost limits.


Project

Massimiliano Gamba


Dimensional data

Intervention area: 75,000 m2

Built up area: 60,000 m2


Chronology

Competition proposal: 2019


<

This website uses cookies.

Please see our Cookies Policy for details.

Accept

Reject