Corte 50

Timisoara, Romania

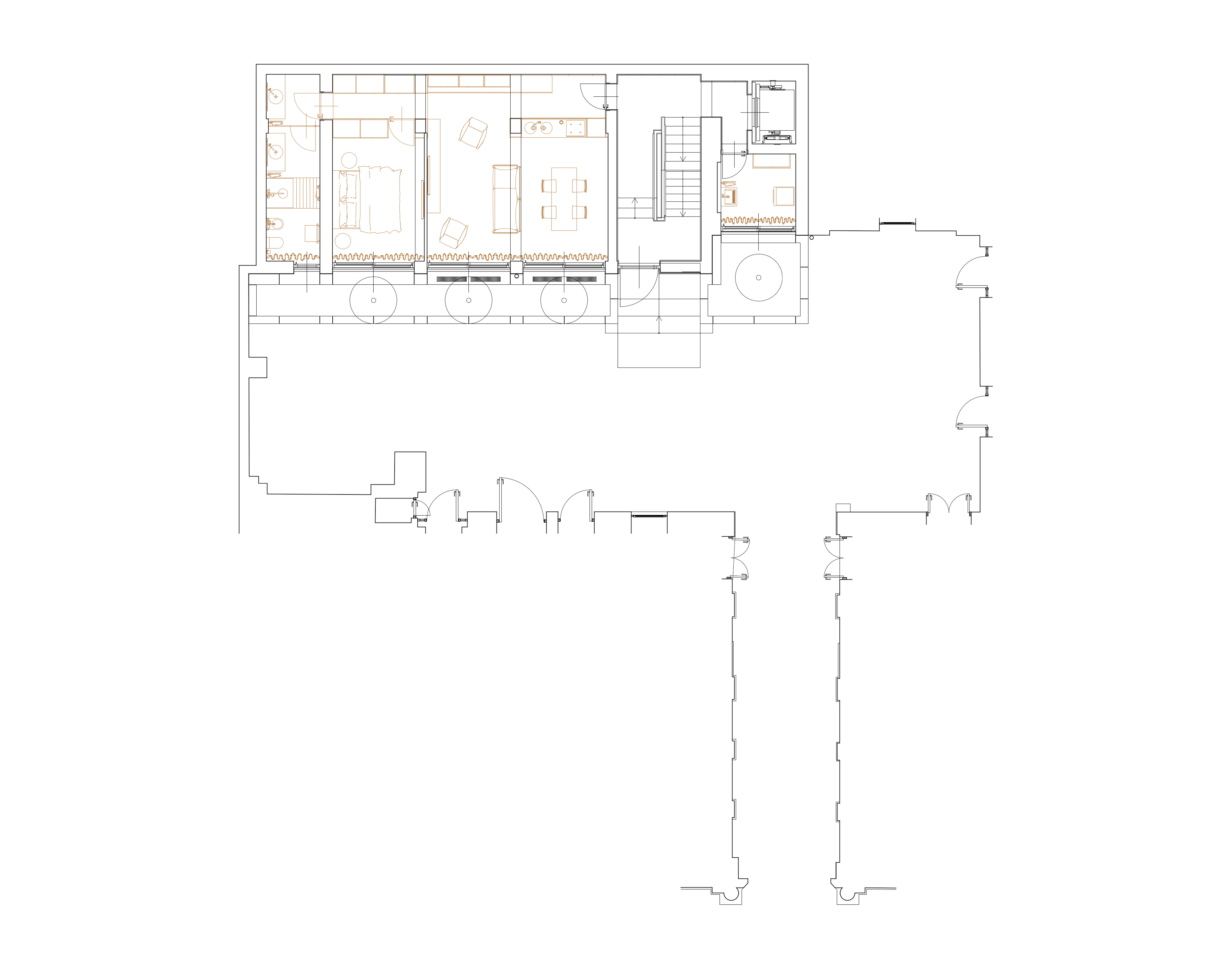
Renovation and interior design of a residential building in a courtyard in the heart of the historic city of Timisoara.


Project and work supervision

Massimiliano Gamba


Chronology

Project: 2022 | Ongoing


<

This website uses cookies.

Please see our Cookies Policy for details.

Accept Reject