Cinema Corso

Vicenza, Italy

The project takes shape as the outcome of a stratified investigation, in which the interpretation of the historical context, the building’s morphological structure and internal articulation, the construction techniques, and the state of conservation are translated into a critical map of values and vulnerabilities. It is precisely within this dialectic – between fragility and potential – that the generative core of the design proposal is situated, conceiving the process of redevelopment not as a mere functional adaptation, but as an act of interpretation and cultural re-foundation.

The methodological approach distances itself from a utilitarian reduction of architecture, to consciously include its immaterial values: the psychic, perceptive, and symbolic ones. Built space is understood not as a simple container of functions, but as a relational device that orients behavior, constructs identity, and accumulates memory. The city and its artifacts are not exhausted by the physicality of the materials that compose them, but constitute living palimpsests, defined by the continuous interaction between places and communities. Places that are identity-bearing, relational, and historical.

The design process thus aims to outline a renewed scenario of architectural quality. One that, far from being a mere aesthetic-formal projection, takes shape as an operative and strategic tool: capable of guiding implementation and management, exploring innovative trajectories, and effectively responding to emerging social needs. The horizon of redevelopment is understood here as a sustainable process, in which the three dimensions of sustainability – environmental, economic, and social – do not simply coexist, but intertwine in a network of mutual reinforcement, giving form to a project that is at once an act of care for place, a resource for the community, and an investment in the future.

The design path has taken as its founding principle the respect for the structural character of the context and the search for deep consonance with the morphological peculiarities of the site. The existing, in its physical and material dimension, has been considered not as a simple starting point, but as an objective and indispensable condition of the design process, a critical point of reference and a generative resource.

From a morphological and compositional perspective, the proposed language for the redesign of spaces takes shape as a dialectical synthesis between permanence and transformation: on one hand, the will to preserve and interpret historical identity; on the other, the need to inscribe the intervention within the horizon of contemporaneity. This language draws from a formal and figurative repertoire that does not merely imitate or reproduce, but critically reworks the grid of distinctive features of the context, translating them into active compositional material, capable of grounding the coherence of the project and, at the same time, projecting it beyond mere conservation toward a new expressive and spatial balance.


The project is structured around a key principle: the preservation of the building envelope as an identity palimpsest and a device of urban continuity. The façades, understood as custodians of collective memory and as elements of recognition within the built landscape, are preserved not through a merely protective logic, but as symbolic thresholds mediating between the permanence of the historic city and the renewal demands inherent in the project. In this sense, the envelope becomes not only an architectural surface, but a critical membrane capable of both preserving the legacy of the past and embracing new expressive possibilities.

The demolition of the internal structures, far from being a destructive gesture, takes the form of a “generative subtraction”, a selective clearing that reactivates the architectural body from the inside, freeing it from the rigidity of an obsolete configuration. The reconfiguration of slab levels and the redistribution of interior spaces thus become design tools to redefine the building organism in a contemporary key, ensuring new spatial and functional legibility.

In this dialectic between container and content, between preserved façade and reinvented structure, the project stands as an exercise in critical continuity: neither a simple replica of the existing nor an act of radical rupture, but a process of recomposition in which historical stratification becomes living material to be reinterpreted. The building, understood as an architectural palimpsest, becomes a site of intersection between memory and design, between permanence and transformation, between consolidated identity and new forms of habitability.

From a construction standpoint, the proposal is based on a balance between conservation and transformation. The demolition of internal partitions, intermediate slabs, and the roof is foreseen, except for the portion of the slab beneath the external residential volume, the latter preserved and fully renovated internally.

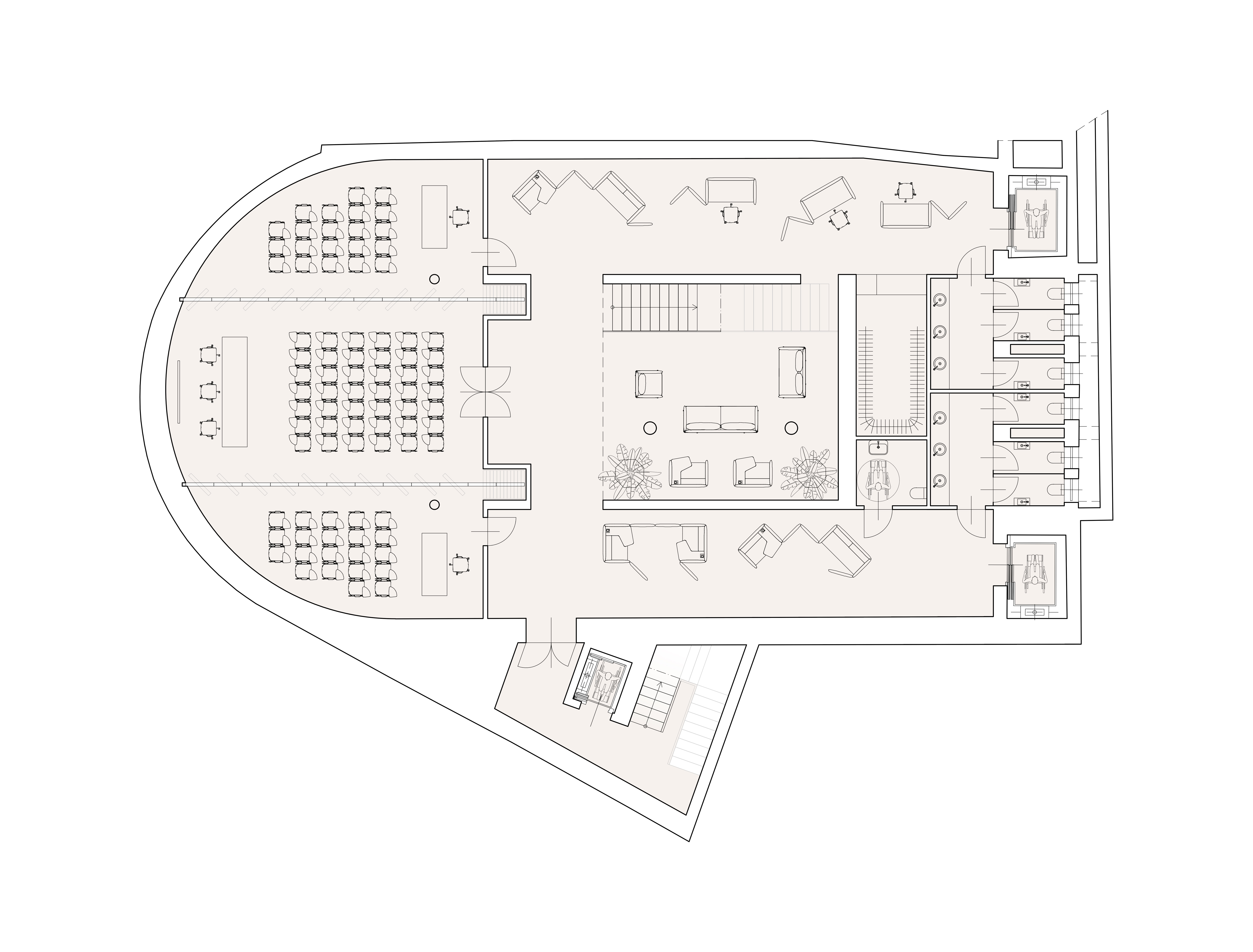
Within the historic envelope, a new independent volume is inserted, redefining the spatial structure across four levels: basement, ground floor, mezzanine, and first floor. A new coffered roof with skylight and a panoramic terrace with a roof garden enrich the building, conceived as spaces of light, social interaction, and openness toward the city.

The existing vertical connections are rethought: the side staircase at the main entrance is replaced by two elevators placed symmetrically, while the staircase on via del Garofolino is replaced by a new stair-elevator system, ensuring accessibility and coherence with the new internal layout.


The proposed program distributes functions across the levels according to the following scheme:

        basement: classrooms - conference rooms - cloakroom - toilets;

        ground floor: entrance - reception - exhibition area - theater;

        mezzanine: bar;

        first floor: gallery - coworking - administration;

        second floor: terrace - residence.

Within this distribution, the project allows for flexibility and multifunctionality, accommodating a diversified program, from visual arts to performances, screenings, and participatory events.


The main entrance is reinterpreted as a qualifying threshold of the project, enhanced by the setback of new glass doors with pivot hinges and bronze handles and hardware. The same metal, used for the external suspended ceiling, establishes a refined material dialogue with the historic “Cinema Corso” sign on the façade, reinforcing the symbolic continuity between past and present.

Universal accessibility is ensured through the insertion of a central ramp, made from the same stone material as the existing pavement. Its essential geometry and facing of stone slabs joined with fine joints give it a discreet, harmonious quality, perfectly integrated with the pavement and the image of the façade.


The entrance hall, conceived as a welcoming space with a reception desk, immediately reveals the grandeur of the interior height and the plastic articulation of the new central volume, defined by solids and voids that offer calibrated views across different levels. On either side are two elevators serving the building up to the first floor, while the residence and roof garden on the top level are accessed via the staircase adjacent to via del Garofolino, also equipped with an elevator.

From the hall begins an exhibition route running along the perimeter, following the building’s semicircular geometry to the west. Here lies the theater space, conceived as a hybrid and flexible venue for artistic performances and contemporary productions, with a central circular stage facing an audience of 105 people seated on semicircular wooden bleachers, screened by a double-height curtain concealing the backstage. At this level, emergency exits are provided on via del Garofolino.


From the entrance hall, a staircase made of white-painted steel with stone treads and wooden handrails, like all the other stairs and parapets throughout the open volumes, leads to the basement. The staircase opens onto a double-height relaxation area visible from the ground floor. The basement houses open, flexible, and multifunctional spaces for workstations, coworking, workshops, and laboratories, as well as three enclosed rooms with movable wooden walls, configurable as two separate or a single large room, ideal for educational and conference activities. Also located here are the cloakroom and toilets (six restrooms divided by gender and one accessible restroom).

On the opposite side, a double-flight staircase connects the hall to the mezzanine level, housing a bar with a privileged view of the entrance, and then to the first floor. The latter accommodates a large continuous space for collective work and research activities, as well as an administrative area organized into glass offices with six workstations and dedicated restrooms. From this level, one accesses the “gallery”: a suspended ribbon-like exhibition route, bordered by a white-painted steel parapet, running along the entire perimeter of the building, following its semicircular shape and echoing the ground-floor path.

A distinctive, ordering, and identity-defining element of the entire architectural organism is the new coffered roof, whose central skylight serves as the primary source of natural light. This luminous and figurative device floods the interior with diffuse, sculpting light, defining the spatiality of the environment, emphasizing the visual hierarchy of volumes, and unifying the different levels. At the same time, it endows the building with a scenic and monumental dimension, inscribing the interior space within a horizon of contemporary representativeness.


The building, characterized by volumes articulated over multiple levels and double-height open spaces, requires an integrated, efficient, and sustainable systems solution respectful of the architectural qualities and energy performance. The lighting system is conceived as articulated and sophisticated, based on a variety of fixtures and applications, equipped with differentiated sources and optics. This solution allows the modulation of lighting direction according to the highest functional and scenographic requirements, restoring a controlled and calibrated perceptual quality to the interiors, enhancing the spatial and volumetric articulation of the architectural organism.

The technical rooms, located on the mezzanine and first floors, are accessible via the staircase and elevator adjacent to via del Garofolino, serving as essential nodes for systems management. The shaft positioned on the opposite side plays a key role, ensuring proper ventilation and operation of the systems equipment, while acting as an infrastructural element integrated into the compositional logic of the building.


The adopted design methodology aims to achieve a dynamic balance between the guiding principles of the project and the concrete practice of construction—between theoretical reflection and operational praxis, formal intuition and executive definition, as well as between compositional choices and technological solutions. This approach evolves within the framework of existing constraints and established economic limits, ensuring consistency between design vision, architectural quality, and construction feasibility.



Project

Massimiliano Gamba


Chronology

Competition proposal: 2025


<

This website uses cookies.

Please see our Cookies Policy for details.

Accept Reject