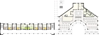
Hotel and restaurants in Franciacorta
Brescia, Italy
Project
Massimiliano Gamba
Chronology
Project: 2008
<
Menu
Studio
Profile
Works and projects
Residential
Commercial
Civic and cultural
Objects
Info
Contact
Cookies Policy
Copyright and credits
IT
Works and profile
This website uses cookies.
Please see our Cookies Policy for details.